Your privacy is important to us. This website uses cookies to enhance user experience and to analyze performance and traffic on our website. By using this website, you acknowledge the real-time collection, storage, use, and disclosure of information on your device or provided by you (such as mouse movements and clicks). We may disclose such information about your use of our website with our social media, advertising and analytics partners. Visit our Privacy Policy and California Privacy Disclosure for more information on such sharing.

Log In

Our Brands

Helpful Tools

Search

Explore Tandara

Home > Tandara
Tandara RVs

Explore Tandara

Tandara Fifth Wheels

TANDARA, a mid-profile 5th wheel brand that is the perfect camping haven. This brand embodies quality, luxury and loaded features - standard. With its stylish artesian maple décor and quality construction, the TANDARA offers only the best-selling mid-profile floor plans in the industry so you can be sure you will have all the essentials of a luxury fifth wheel at an affordable price.


TANDARA – means “camp here” when used by
the indigenous people of Australia


#GOEASTTOWEST

Tandara Exterior Image
Follow Tandara on Social Media:

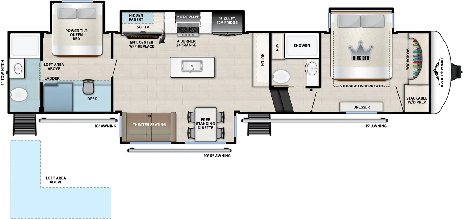
2026 Tandara Floorplans

Half-Ton Fifth Wheels

Fifth Wheels

2026 Tandara Features & Options

    Tandara Climate Package
    • Vacuum Bonded, Welded Aluminum Structure
    • High-Efficiency Dual A/C System: 2 x Ducted 13.5K BTU A/Cs w/ optional 3rd A/C
    • Azdel® Laminated Sidewalls, Slide-out End Walls, Slide-out Roofs, and Rear Wall
    • Ductless Flooring w/ 5/8" Tongue & Groove Main Floor Decking
    • 35,000 BTU High-Capacity Furnace
    • Dual Attic Vents
    • Electric Fireplace
    • 12v Heat Pads on Holding Tanks
    • Heated & Enclosed Underbelly & Dump Valves w/ Circulating Heat
    • Formaldehyde Free Fiberglass Insulation in Roof, Front Cap & Main Floor
    • 50 Amp Service
    • Dual 30 lb LP Tanks
    Tandara Interior Luxury Package
    • 24" Free Standing Gas Range w/ Four Burners
    • 30" Over-The-Range Microwave
    • 16 Cubic Foot 12v Door Refrigerator
    • Solid Surface Kitchen Countertops
    • Stainless Steel Sink
    • Flush Floor Kitchen Slide
    • 60K BTU On Demand Tankless Water Heater
    • Slow Rise™ Roller Shades
    • Washer/Dryer Prep
    • GE Dishwasher (388LR and 390FL)
    • CPAP Shelves in Bed Base
    • King Bed (70" x 80")
    Tandara Exterior Luxury Package
    • Automatic Leveling System
    • Driver's Side Automatic Leveling System Control Box
    • 2" Towing Hitch
    • Water Shutoff Valves on All Plumbing Fixtures
    • Dual Power Awnings w/ LED Lights
    • Automotive Style Riveted Wheel Skirts
    • Metal Slam Latch Cargo Pass Through Doors
    • Universal All-In-One Docking Station
    • Oversized 78" Tall x 30" Wide Entrance Door
    • Solid Entry Steps with Extended Grab Handle
    • Full Size Spare Tire
    • Seamless High Visibility LED Front Cap Lights
    • 200 Watt Solar Panel and 30 Amp Controller
    • LP Quick Connect
    Options
    • 3rd A/C
    • Stackable Washer & Dryer
    • Queen Bed
    • Super Sofa
    • Booth Dinette IPO Free Standing Dinette w/ 4 Chairs
    • 32" Bedroom TV
    • 32" TV (387BH bunkroom, 389DS rear bedroom)
    Premium Package
    • 60,000 BTU On-Demand Tankless Water Heater
    • 15,000 BTU Coleman Mach Main A/C
    • 50 Amp Electric, Pre-wired & Braced for 2nd 15,000 BTU A/C Option
    • 30,000 BTU Furnace
    • Electric Stabilizer Jacks
    • 40" Smart TV
    • Aluminum Luxury Wheels w/ Full Size Spare
    • 70" x 80" King Bed w/ Outlets, USB, and USB-C on Both Sides of Bed
    • Wide Entry Door Steps w/ Composite Step Trends
    • Pocelain Foot Flush Toilet
    • Tinted Windows w/ Pleated Privacy Shades
    • Ductless Flooring - No Heat Ducts on the Floor
    • 10-Ply E-Rated Tires w/ Road Side Assistance
    • Aluminum Luxury Wheels w/ Full Size Spare
    • AlphaPLY Roof Membrane w/ Limited Lifetime Warranty
    • Dual Attic Vents
    • Azdel® Laminated Sidewalls w/ 2 lb. Block Foam Insulation
    • Azdel® Laminated Slide-out End Walls w/ 2 lb. Block Foam Insulation
    • Azdel® Laminated Slide-out Roofs w/ 2 lb. Block Foam Insulation
    • Azdel® Laminated Rear Wall w/ 2 lb. Block Foam Insulation
    • Formaldehyde Free Fiberglass Insulation In Roof & Front Cap
    • Heated & Enclosed Underbelly w/ Circulating Heat
    • PEX Plumbing
    • Rear View Camera Prep
    • (2) 30 lb. Propane Tanks
    • Spring Hangers w/ V-Bracket Reinforcement
    • Automotive Style Riveted Wheel Skirts
    • Large Shower w/ Retractable Shower Door & Skylight
    • LED Marker Lights, LED Taillights w/ Back-Up Lights
    Options
    • Queen Bed
    • Theater Seating in Place of Hide-a-Bed Sofa
    • 32" Bedroom TV
    • Free-Standing Dinette IPO Booth Dinette (235ML only)
    • 4-Point Electric Automatic Leveling System
    • 2nd Air Conditioner (13' Height with Option)
    • 200 Watt Solar Panel w/ 30 Amp Controller

Tandara Update Alerts

Please sign up below if you would like to receive notifications when we make updates to this brand. Or, if you only want updates on a particular floorplan, you can select to be updated on each one individually.